임진강 리버뷰 풀빌라의 최고 연천동동마을의 belle37(벨37)
날마다집을짓는사람들이 심혈을 기울여 준비하고 있는 풀빌라 belle37 프로젝트를 공개합니다!
belle37 ....?
영문으로 belle37
한글 발음은 벨37
사전적 의미로는 '특정한 장소의 최고의 미인' 이란 뜻으로
서울근교에서 천혜의 자연경관을 지니고 있는 연천군,
연천군에서도 임진강의 아름다운 리버뷰를 지니고 있는곳이 장남면 원당리의 동동마을이며,
동동마을에 임진강 최고의 리버뷰를 지니고 있는 풀빌라의 최고 'belle37' 을 오픈 예정입니다.
풀빌라 belle37은 일반 팬션과는 차별화 된 럭셔리 풀빌라 모델입니다.
풀빌라 belle37 이 위치하는 곳
주소. 경기도 연천군 장남면 원당리 37-37
본격적인 건축을 앞두고 그 동안 소소하게 준비해 온 내용들을 정리해봅니다.

풀빌라 belle37이 들어설 대지 전경입니다. (소나무가 있는 아래쪽 대지)


소나무 위치에서 바라본 임진강 리버뷰
풀빌라 belle37이 들어설 곳의 대지면적은 총 170평인데
도로지분 23평을 빼면 전용면적 147평으로 계획관리지역이라 건폐율 40%까지 건축이 가능합니다.
듀플렉스로 좌,우 30평정도로 건축을 할 예정입니다.
굳이 듀플렉스를 고집하는 이유는
기본 타겟층을 커플이나 4인가족이내로 보기때문에 규모가 너무 클 필요가 없어
객실수를 2개로 나누었으며 차후 분할을 하여 각,각 분양을 하는것도 고려하였습니다.
요즘은 층간 소음뿐 아니라 측간 소음도 문제가 되기 때문에
좌,우 건축물을 2~3미터 정도 공간을 띄워 측간소음을 방지하고
측간 공간에 공용계단실 겸 포토죤을 꾸밀 계획입니다.
휴식을 취해야 하는 주거건물에서 층간,측간 소음은 절대 안돼요~~!!

풀빌라 belle37 들어설 토지의 경우 도로 기준에서 대지 끝선까지 7미터 정도 단차가 있는 지형으로
도로기준 대지선(G.L)을 기준으로 2층 바닥이 되고 4미터 하부가 1층 바닥선이 되며
건물앞쪽 정원은 2미터 정도 성토를 하여 1미터 정도 단차를 주어 1층 바닥(수영장)에서
임진강 리버뷰를 막힘없이 감상할 수 있습니다.

수영장을 1층에다 설치하느냐 2층에다 설치하느냐 고민하다가 1층에서도 충분히 임진강뷰가 나오고 데크와 정원이 연결이 되므로 개방감이 좋은 1층에 설치하기로 결정하고 기본 스케치를 해 보았습니다

대략적인 1층 구조는 수영장이 주 목적이며 정원 앞쪽으로 폴딩도어를 설치하여 4계절 항시 개방감있게 수영을 즐길 수 있도록 하고 수영장 앞에 넓은 데크공간을 주어 임진강 뷰를 감상하면서 선텐을 하거나 차를 마실 수 있는 공간으로 활용할 예정입니다.

2층은 도로면에 접한 층으로 주차장과 출입구가 연결되어 있습니다.
주차를 하고 출입문을 열고 들어오면 정면으로 임진강 뷰가 시원하게 펼쳐지도록 전면은 심플한 커튼월 샷시를 설치 할 계획이며 1층 수영장과 연결되는 계단은 오픈형 공간으로 1,2층에서 답답함을 줄였습니다.
2층에는 자쿠지 공간과 숙면을 취할 수 있는 방과 욕실이 배치되어 있습니다.
처음엔 3층 구조를 생각하여 3층에 테라스가 달린 휴식공간을 배치하려 했는데 택지 분양 당시 도로면 뒤쪽 택지의 건축시 조망을 최대한 확보해 주기위해 도로면 앞쪽 건축물 높이를 도로면에서 4미터 이하로 제한 하기로 약정이 되어 있어 계획을 수정하여 2층 앞쪽에 발코니를 두고 노대형 테라스를 설치할 계획으로 고민중에 있습니다.

내, 외부 마감은 구체적으로 정하지는 못했지만 내부 기본 마감은 샌딩노출을 고려중이며 내부계단의 경우도 벽과 일체감있게 샌딩 노출로 깔끔하게 연출할 계획입니다.
매끈한 노출이나 거친 유로폼 노출과는 달리 샌딩노출의 장점이라면 빈티지 하면서도 깔끔한 질감이겠죠..^^
샌딩노출이 생소하겠지만 날마다집을짓는사람들이 가끔 연출하는 노출콘크리트 공법이랍니다.
샌딩노출의 또다른 맛을 풀빌라 belle37에서 즐기실 수 있을겁니다.

풀빌라 belle37 1층 수영장에서 임진강을 바라보는 조감도 입니다.
가상의 이미지로 표현한 것이라 임진강 뷰가 선명하지는 않지만 풀빌라 belle37이 완공된 후에 실제 풀에서 바라볼때는 더 멋진 임진강뷰를 감상하실 수 있을겁니다.

풀빌라 belle37 1층과 2층을 연결해 주는 내부 계단 전경입니다.
풀 앞쪽은 1,2층이 오픈되어 답답함을 없애고 조감도에는 표현이 되어 있지 않지만 풀 앞쪽은 폴딩도어를 설치하여 폴딩도어를 열면 데크와 연결되도록 하여 개방감을 줄 계획입니다.

2층 거실, 방 그리고 욕실에서 바라보는 임진강 방향의 조감도 입니다.
욕실에는 자쿠지를 설치하고 외부 테라스 방향으로 개방감을 주었습니다.

2층 테라스 상단에 노대형 테라스를 설치하여 좀 더 높은곳에서 임진강뷰를 감상할 수 있도록 보너스 공간을 고민중입니다.
노대형 테라스로 인해 다소 조망이 방해가 되는 단점보다는 노대형 테라스의 장점이 더 있지 않을까요?
계단은 노대형 테라스의 공간활용과 자쿠지에서의 시야 확보를 위해 코너에 원형계단을 고려중입니다.

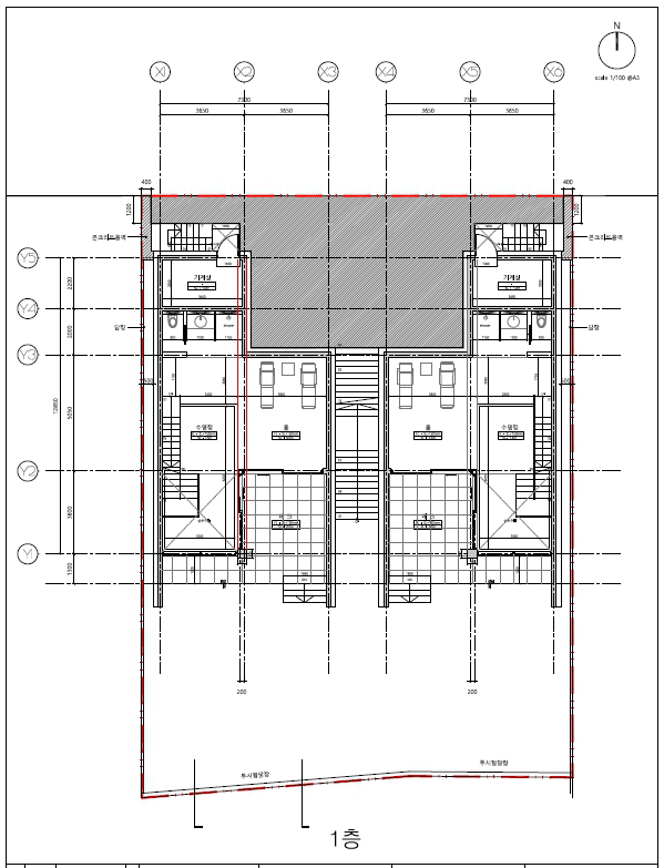
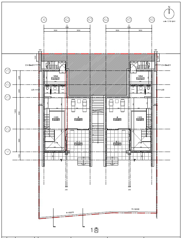
수정된 1층 평면입니다.
1층은 풀과 홀 그리고 욕실이 구성되어 있으며 외부에는 데크와 정원이 조성될 예정.
스케치때와는 달리 기계실을 1층과 2층 사이에 위치하도록 수정하여 2층에서 기계실을 직접 관리 할 수 있도록 하였습니다. 기계실은 수영장설비와 보일러, 그리고 창고 용도로 사용됩니다.

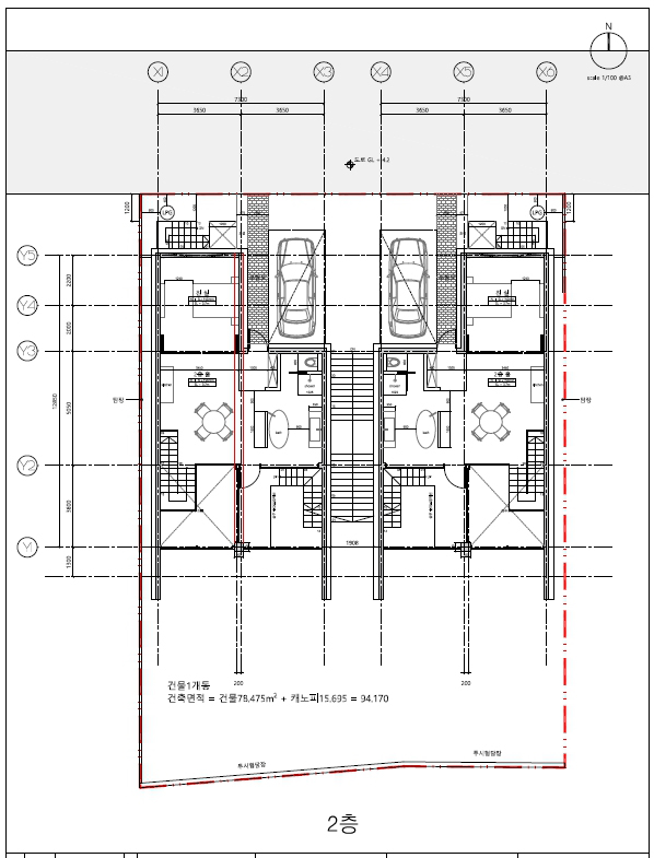
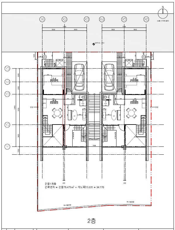
수정된 2층 평면입니다.
노대형 테라스의 설치여부가 관건이네요..^^
임진강 리버뷰 최고의 풀빌라 belle37의 첫삽을 뜰 날이 머지 않았네요.
올해안에 오픈을 목표로 하고 있지만 건축이라는것이 기후에 따라 변수가 작용하기 때문에 장담을 할 수는 없네요.
그동안 뜻하지 않은 일로 인해 계획에 차질이 생기긴 했지만 어려운 가운데서도 날마다집을짓는사람들이 새로운 사업에 첫발을 내딛고 있습니다. 많은 땀과 노력이 필요한 때입니다. 주변에서 응원의 박수를 아끼지 않고 격려해주시는 많은 분들에게 감사드리며 멋진 풀빌라 belle37이 건축될 수 있도록 노력하겠습니다.
연천군 장남면 원당리 동동마을에서 아름다운 임진강뷰를 편안하게 감상할 수 있는 풀빌라 belle37이 오픈하는 날까지 많은 성원 부탁드립니다....^^

풀빌라 벨37 대표사이트 :
벨37
임진강 최고의 리버뷰를 품고 있는 연천 5성급 럭셔리풀빌라는 Private Pool 사계절 온수 수영장과 자쿠지 그리고 수공간의 특별한 만남으로 편안한 휴식과 낭만의 시간을 보낼 수 있는 특별한 추
belle37.com
'신축리뷰 > 풀빌라펜션' 카테고리의 다른 글
| 연천동동마을 독채 럭셔리 풀빌라 펜션 신축부지 소나무이식 및 옹벽터파기와 정화조매립공사 (0) | 2023.01.11 |
|---|---|
| 연천동동마을 5성급 풀빌라 벨37 지반조사 및 경계복원측량 (0) | 2022.12.28 |
| 일몰이 근사한 파주 서패동 렌트하우스 전원주택 신축사례 (0) | 2018.09.20 |
| 파주시 아담하고 분위기 있는 풀빌라 렌트하우스 전원주택시공사례 (0) | 2018.09.05 |
| 파주 렌트하우스 샷시, 공조, 천정반자, 철계단 설치등 실내마무리공사 (0) | 2018.09.03 |
댓글